logo edeis
Login login
Aéroport d'Auxerre Branches

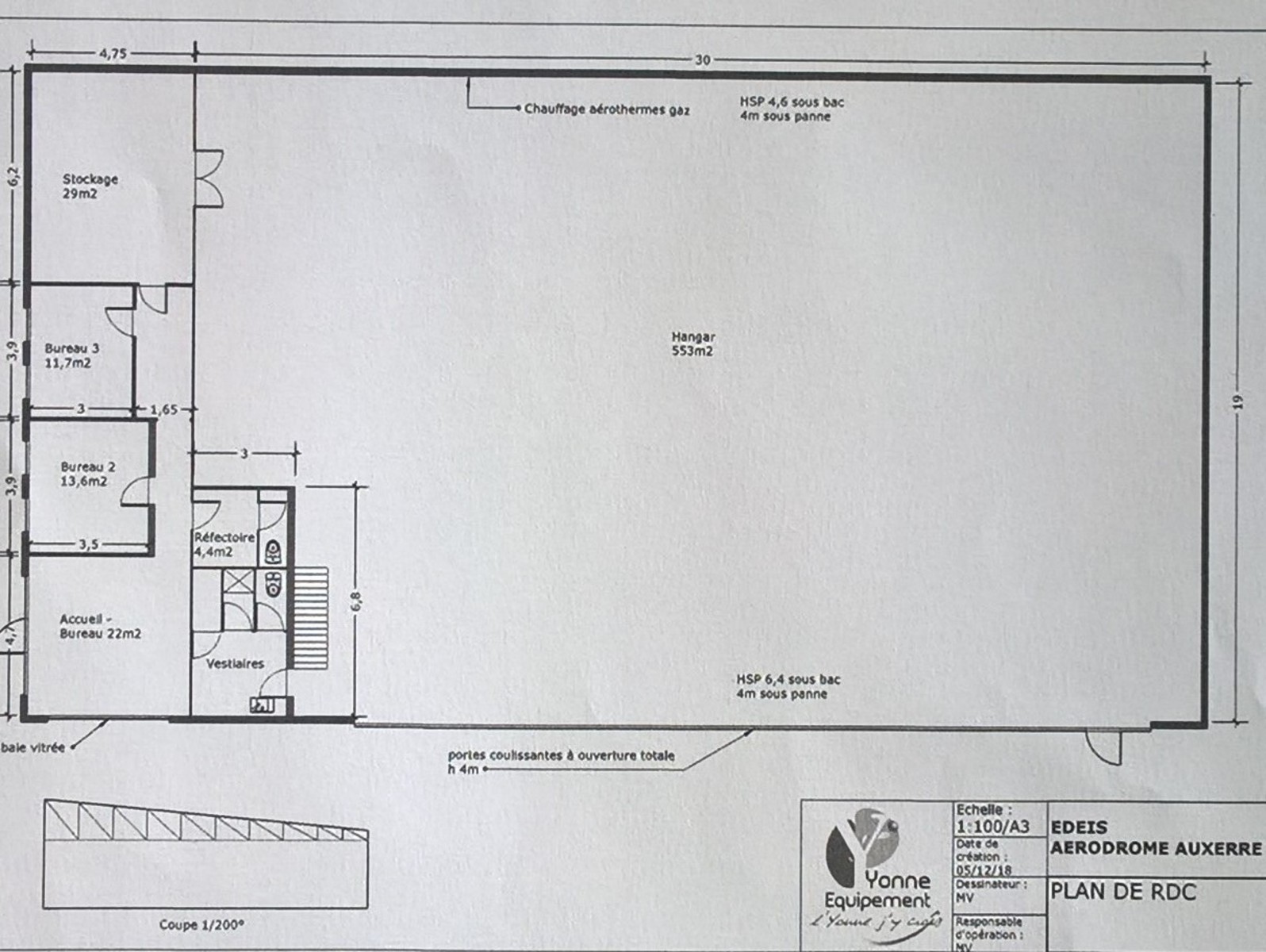
lot 1 - hangar

Hangar - 642 m² - 1,688.52 € / Month
Image principale
Miniature 1 Miniature 2 Miniature 3 Miniature 4 Miniature 5 Miniature 6 Miniature 7 Miniature 8 Miniature 9 Miniature 10 Miniature 11 Miniature 12
Contacts
Aéroport d'Auxerre Branches 89380 Appoigny 03.86.48.31.89